Ortega y Gasset 66
- 1.019.000€
Descripción general
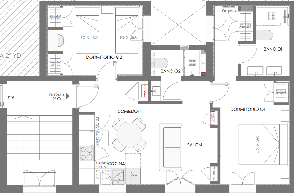
- 68m2
- 2
- 2
Descripción
Piso en José Ortega y Gasset 66 (Lista – Salamanca)
Un piso de 68 m2 catastrales que combina elegancia, equilibrio y funcionalidad en el corazón del barrio de Salamanca.
Situado en José Ortega y Gasset 66, dentro del prestigioso enclave de Lista – Salamanca, este proyecto se desarrolla en una finca de fachada clásica de 1920. El entorno ofrece la mezcla perfecta entre calma residencial y vida urbana, con boutiques, restaurantes y cafés que reflejan la esencia contemporánea del distrito.
Actualmente en proceso de transformación por el estudio ArcTempus, la vivienda contará con dos dormitorios y dos baños distribuidos con una lógica de espacio fluida y luminosa.
El diseño apuesta por un salón de 35 m2 abierto al comedor y a la cocina, creando un ambiente continuo donde la luz natural, potenciada por su orientación sur, se convierte en el hilo conductor de la vivienda.
Las imágenes que acompañan este proyecto son renders fieles al resultado final, una representación exacta del estilo y los acabados que se encontrarán al finalizar la obra.
Los interiores han sido concebidos con materiales nobles y un cuidado trabajo de proporciones.
La carpintería de suelo a techo, los baños con piezas de Porcelanosa y la cocina totalmente equipada con electrodomésticos de última generación definen un espacio contemporáneo y eficiente.
El sistema de calefacción por gas individual y el aire acondicionado por split garantizan confort térmico durante todo el año.
El piso se entregará amueblado y completamente equipado, listo para disfrutar desde el primer día. Cada detalle refleja la filosofía de ArcTempus: diseño funcional, luz y armonía.
Este inmueble se encuentra en la etapa final de su reforma, ofreciendo aún la oportunidad de personalizar algunos acabados.
Contacta con nosotros y te informaremos de las opciones disponibles.
Características
Dirección
Abierto en Google Maps-
Dirección: C. de José Ortega y Gasset, 66, Salamanca
-
Código Postal: 28006, Madrid







