General Díaz Porlier 99
- 2.189.000€
Descripción general
- 153m2
- 3
- 3
Descripción
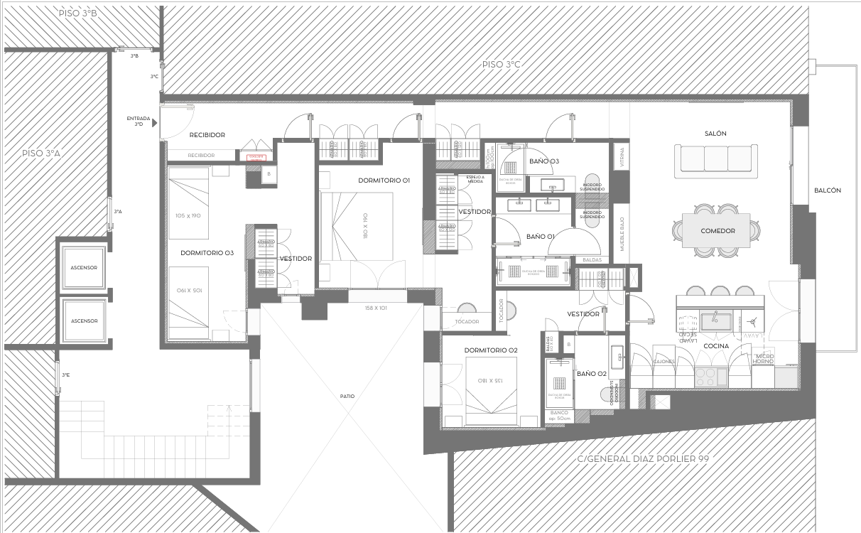
Exclusiva vivienda exterior situada en la calle General Díaz Porlier, en pleno barrio de Salamanca, una de las zonas más prestigiosas y demandadas de Madrid.
Ubicada en una tercera planta, esta luminosa propiedad cuenta con 153 m2 catastrales y una excelente orientación sureste, que garantiza una magnífica entrada de luz natural durante todo el día.
La vivienda ha sido completamente transformada con un diseño moderno y elegante, ofreciendo un amplio salón-comedor con acceso a terraza exterior, ideal para disfrutar del entorno urbano. Dispone de tres dormitorios y tres baños, proporcionando comodidad y funcionalidad para el día a día.
La cocina está totalmente equipada y la vivienda se entrega amueblada, lista para entrar a vivir. Además, cuenta con aire acondicionado por conductos y calefacción central, asegurando el máximo confort en cualquier época del año.
El edificio dispone de ascensor y servicio de portería, y la propiedad incluye plaza de garaje, un valor añadido muy importante en la zona.
Una oportunidad única de vivir en una ubicación privilegiada, rodeado de todos los servicios, comercios, restaurantes y excelentes conexiones en el corazón de Madrid.
Dirección
Abierto en Google Maps-
Dirección: Calle del General Díaz Porlier, 99
-
Código Postal: 28006 Madrid









