Montera 39
- 919.000€
Descripción general
- 112m2
- 3
- 3
Descripción
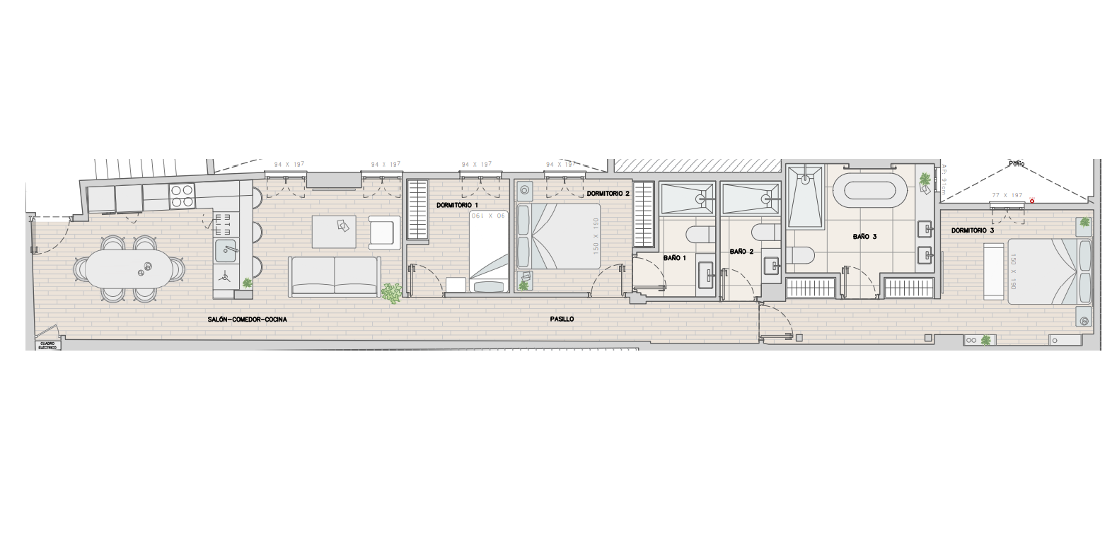
Vivienda transformada ubicada en una finca clásica de 1905 con ascensor, en la calle Montera, en pleno centro de Madrid.
Con 112 m2 catastrales, esta tercera planta interior ofrece una distribución cómoda y equilibrada: salón comedor, cocina equipada, tres dormitorios y tres baños completos.
La propiedad cuenta con calefacción individual por caldera, aire acondicionado y se entrega totalmente amueblada, lo que permite disfrutarla desde el primer día.
Su ubicación en el corazón de Madrid la convierte en una opción muy atractiva tanto para vivienda como para inversión, combinando carácter clásico y funcionalidad contemporánea.
Características
Dirección
Abierto en Google Maps-
Dirección: C. de la Montera, 39
-
Código Postal: 28013 Madrid









