Hilarión Eslava 48
- 769.000€
Descripción general
- 79m2
- 2
- 2
Descripción
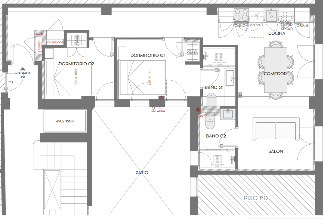
Vivienda transformada de 79 m2 catastrales, ubicada en una primera planta interior de una finca de 1960 con ascensor, en la calle Hilarión EAslava, en pleno Chamberí.
La propiedad se entrega completamente amueblada y presenta una distribución bien aprovechada que incluye un salón-comedor confortable, cocina equipada, dos dormitorios y dos baños completos. El diseño prioriza la funcionalidad y el confort, con espacios equilibrados y bien definidos.
La orientación suroeste aporta luminosidad natural, mientras que su condición interior garantiza tranquilidad. Dispone de calefacción central y aire acondicionado, asegurando una temperatura óptima durante todo el año.
Situada en un entorno urbano consolidado, con acceso inmediato a servicios, zonas comerciales y transporte público, esta vivienda representa una excelente oportunidad para quienes buscan un piso listo para entrar a vivir o una inversión segura en Chamberí.
Dirección
Abierto en Google Maps-
Dirección: C. de Hilarión Eslava, 48
-
Código Postal: 28015 Madrid








